
베트남에서 아파트를 매매하거나 렌트하려고 돌아다녀 보면 굉장히 다양한 구조의 unit 을 보게 된다. 한 동 안에서도 세대마다 구조가 천차만별이니, 구경하는 재미까지 있을 정도다. 이렇게 각 가정의 구조가 다를 수 있는 이유는 아파트 대부분이 기둥식 구조로 지어지기 때문이다.

기둥식 구조로 아파트를 짓다 보면 리모델링에 있어 굉장히 장점이 많은 가운데, 층간 소음에서도 벽식 구조보다 자유롭다. 벽식 구조는 윗집에서 소음을 유발했을 때 그 충격과 소음이 집안 곳곳에 있는 벽을 따라 그대로 전해지기 때문에 시끄럽다.
하지만 기둥식 구조의 경우 일단 천장을 가로지르는 기둥을 타고 소음이 외벽으로 흐른 다음 하부로 전해지기 때문에 상대적으로 소음이 완화된다. 게다가 기둥식 구조라 그런 건지는 자세히 모르겠지만, 우리나라의 아파트들보다는 천장고가 더 높다. 그래서 상대적으로 트인 느낌이 더하다.
물론 기둥식 구조가 장점만 있는 것은 아니다.
건축비가 벽식 구조에 비해 20% 정도 비싸다는 단점이 있다.
이러한 베트남 아파트의 특징 중 비싼 건축비는 어쨌든 나 같은 외국인 입장에서는 고국 대비 매력적인 분양가 때문에 실제 체감이 되지는 않는 단점이고, 층간 소음이 적다고 해도 워낙에 소음 유발이 많은..문화에 적응해 살아야 하다 보니 크게 장점으로 느껴지지도 않는다. 다만, 집 구조를 마음대로 변경할 수 있다는 점은 꽤 큰 메리트로 다가온다.
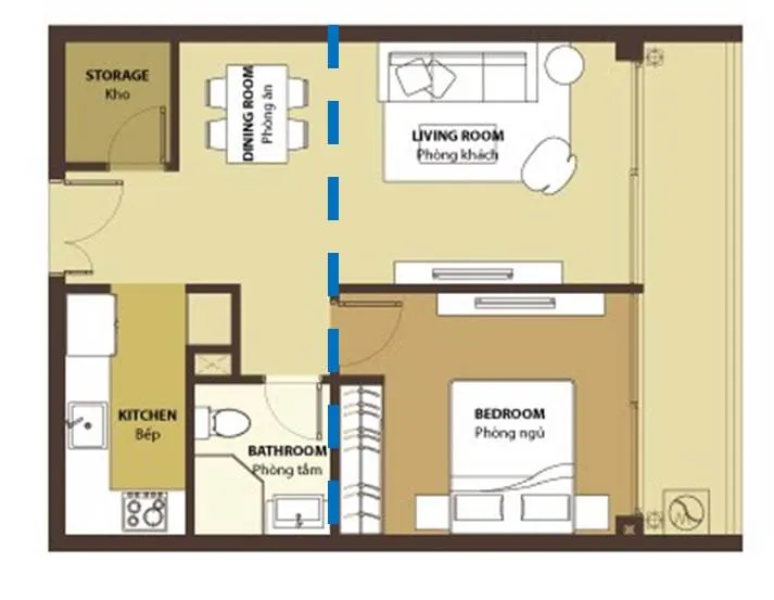
59.9m2 크기의 유닛을 보면 기본 구조가 아래 평면도와 같다. 방 하나에 거실 주방으로 이루어지는데, 이 공간에 온갖 상상력이 동원된다.

거실과 침실 사이의 벽을 없애버린 다음에 파란 점선을 따라 벽을 세워 우측은 거실 겸 침실로 만들고 좌측을 다이닝 룸으로 구분해 놓은 집이 있는가 하면,

1Bed 인 집을 2Bed 로 바꿔 버리고 월세를 조금 더 받는 경우도 있다.

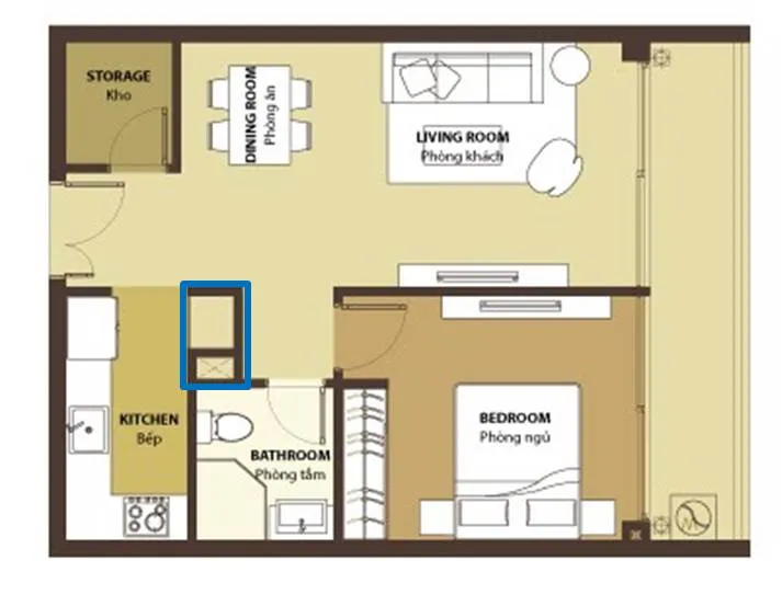
젊은 집주인의 경우 파란색 부분의 스토리지 공간을 없애고 아일랜드 식탁을 둔 다음 싱크대를 바로 옆에 두어 거실을 바라보고 일을 할 수 있게 한 집도 있었다. 집주인의 발상이 굉장히 유쾌했다. 식모도 아니고 꼭 구석에서 설거지를 할 필요는 없지 않냐고 한다. 친구 가족과 같이 수다도 떨며 정리를 해야 스트레스가 없단다. 영국 유학을 다녀왔던데, 역시 배운 사람은 틀리다 싶었다.

1Bed 에서 4Bed 까지 다양한 크기의 다양한 구조의 유닛들이 한 층에 자리하는데, 최근 지어지는 아파트는 대부분 타워형으로 지어진다. 따라서 각 세대가 엘리베이터를 기준으로 빙 둘러져 있다. 아파트를 짓는 입장에서는 최대한 공간을 활용해야 하기 때문에 어쩔 수 없겠지만, 통풍을 고려하면 그다지 좋지는 않다. 그리고 각 세대는 오직 한 방향의 조망만 가능하기에, 바라보는 향에 따라 가격의 차이도 생긴다.

생각난 김에 조망 관련 가격 차이가 얼마나 나는지도 한번 조사해봐야겠다.
베트남 호치민의 부동산 관련 글을 리스트 업 해두겠습니다.
호치민의 부동산 시장
[ 베트남 ] 호치민 부동산의 부상과 미래 - 투티엠 (Thu Tiem)
[ 베트남 ] 호치민의 지하철 그리고 동남아시아의 철도 인프라
보다 정확하고 다양한 콘텐츠 작성으로 보답하겠습니다. :)
Sponsored ( Powered by dclick )
DCLICK: An Incentivized Ad platform by Proof of Click - 스팀 기반 애드센스를 소개합니다.
안녕하세요 스티미언 여러분. 오늘 여러분께 스팀 블록체인 기반 광고 플랫폼 DCLICK을 소개...

이 글은 스팀 기반 광고 플랫폼
dclick 에 의해 작성 되었습니다.